Electrical Substation Plan and Section DWG File View
Description
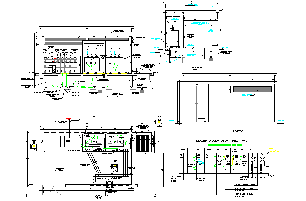
Electrical substations plan and section dwg file, dimension detail, naming detail, section A-A’ detail, section B-B’ detail, circuit detail, motor detail, etc.
File Type:
3d max
File Size:
332 KB
Category::
Electrical
Sub Category::
Architecture Electrical Plans
type:
Gold
Uploaded by:
