LOGIN
HOME
CATEGORIES
UPLOAD FILE
PRICING
HOUSE PLAN
ABOUT US
CONTACT US
Lift waste water plant autocad file
Home
Categories
Details
Construction Details
Lift waste water plant autocad file
Uploaded by:
Dhara
View Profile
View Profile
Description
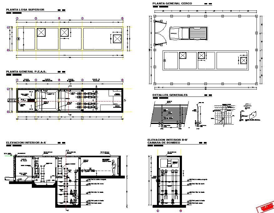
Lift waste water plant autocad file, centre line plan detail, dimension detail, plan, elevation and section detail, cut out detail, reinforcement detail, bolt nut detail, etc.
File Type:
DWG
File Size:
911 KB
Category::
Details
Sub Category::
Construction Details
type:
Gold
Uploaded by:
Dhara
View Profile
Download
Add to libary
find Latest
Related
Files