Section high school reconstruction layout file
Description
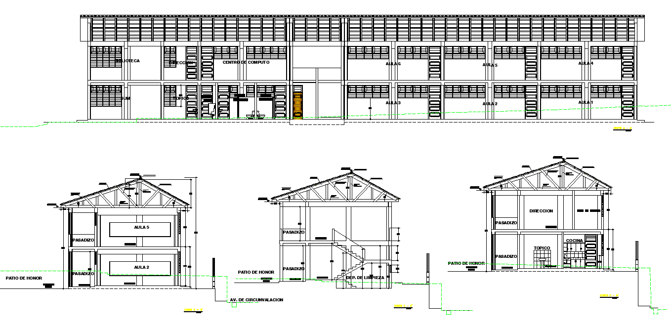
Section high school reconstruction layout file, dimension detail, naming detail, section A-A’ detail, section B-B’ detail, section C-C’ detail, section D-D’ detail, steel framing detail, stair section detail, furniture detail in door and window detail, etc.
Uploaded by:
