LOGIN
HOME
CATEGORIES
UPLOAD FILE
PRICING
HOUSE PLAN
ABOUT US
CONTACT US
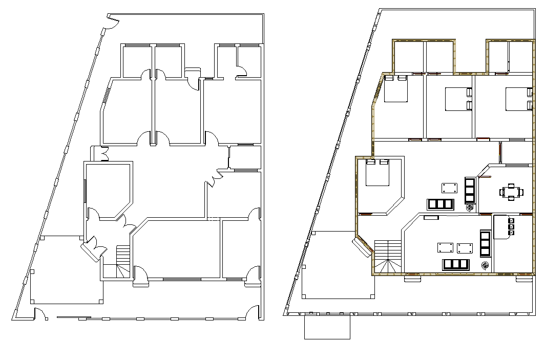
Family house planning detail dwg file
Home
Categories
Architecture
House Plan
Family house planning detail dwg file
Uploaded by:
Dhara
View Profile
View Profile
Description
Family house planning detail dwg file, line plan detail, furniture detail in door, window, sofa, table and chair detail, stair detail, etc.
File Type:
DWG
File Size:
3.2 MB
Category::
Architecture
Sub Category::
House Plan
type:
Gold
Uploaded by:
Dhara
View Profile
Download
Add to libary
find Latest
Related
Files