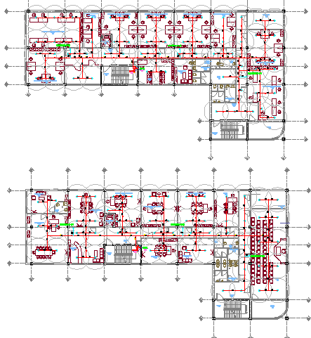
Ground and first floor plan layout details of admin office dwg file
Description
Ground and first floor plan layout details of admin office dwg file.
Ground and first floor plan layout details of admin office that includes a detailed view of ground floor, first floor with main entry and exit gate, reception area, waiting area, offices, general seating area, passage, dining area, smoking area, general hall, head offices, employee offices, employee desk, sanitary facilities, meeting room, conference hall and much more of office building floor plan.
Uploaded by:

