Obstructive details and installations in housing dwg file
Description
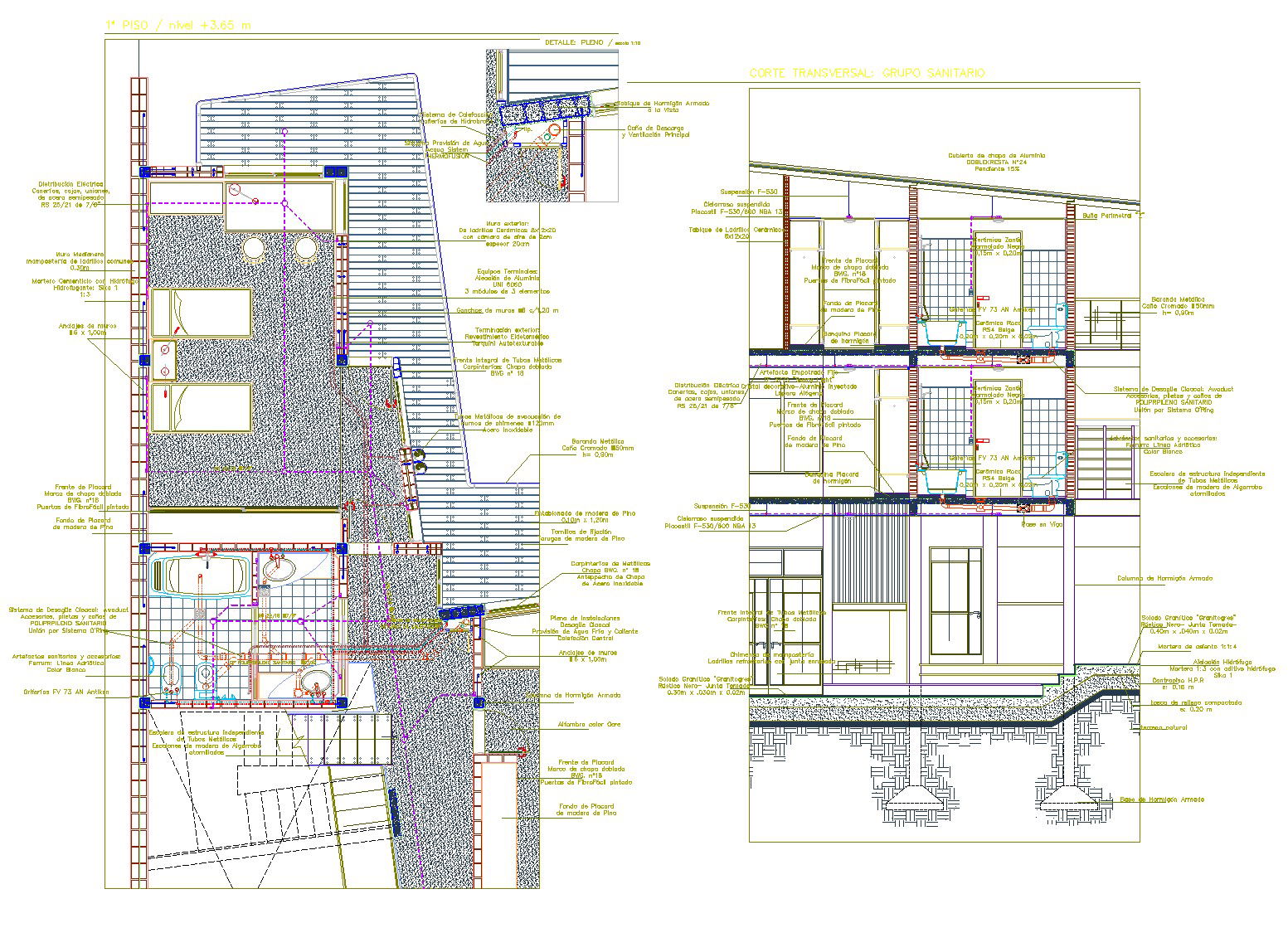
Obstructive details and installations in housing dwg file, dimension detail, naming detail, hatching detail, foundation detail, toilet section detail, brick wall detail, furniture detail in door and window detail, etc.
Uploaded by:

