LOGIN
HOME
CATEGORIES
UPLOAD FILE
PRICING
HOUSE PLAN
ABOUT US
CONTACT US
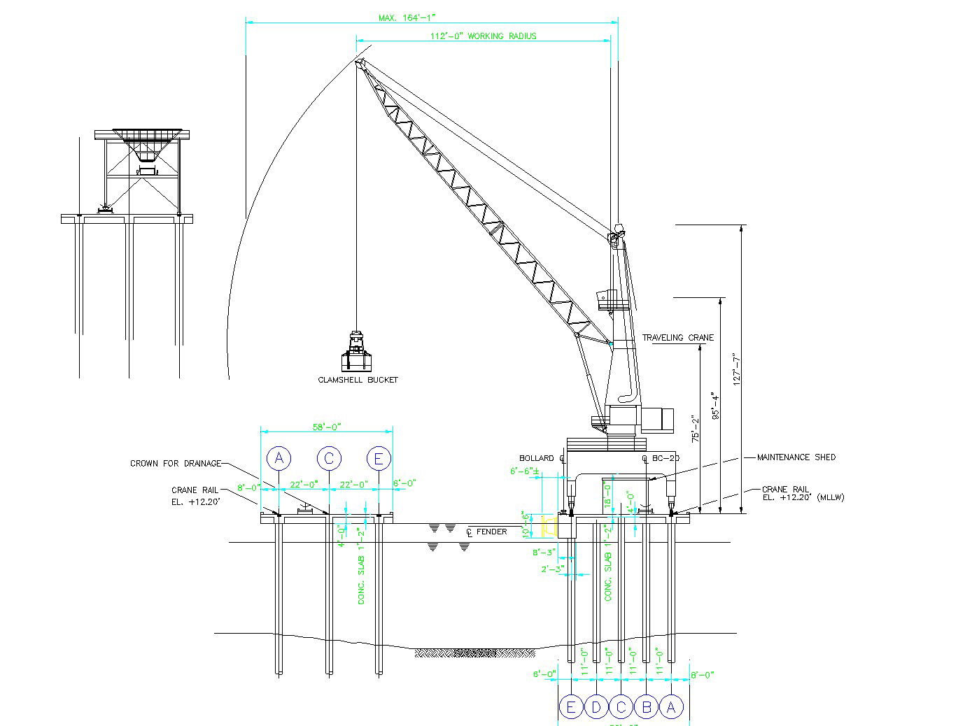
Dock of charge with cranes plan dwg file
Home
Categories
Details
Construction Details
Dock of charge with cranes plan dwg file
Uploaded by:
Dhara
View Profile
View Profile
Description
Dock of charge with cranes plan dwg file, centre lien plan detail, dimension detail, steel framing detail, naming detail, cranes detail, etc.
File Type:
DWG
File Size:
359 KB
Category::
Details
Sub Category::
Construction Details
type:
Gold
Uploaded by:
Dhara
View Profile
Download
Add to libary
find Latest
Related
Files