LOGIN
HOME
CATEGORIES
UPLOAD FILE
PRICING
HOUSE PLAN
ABOUT US
CONTACT US
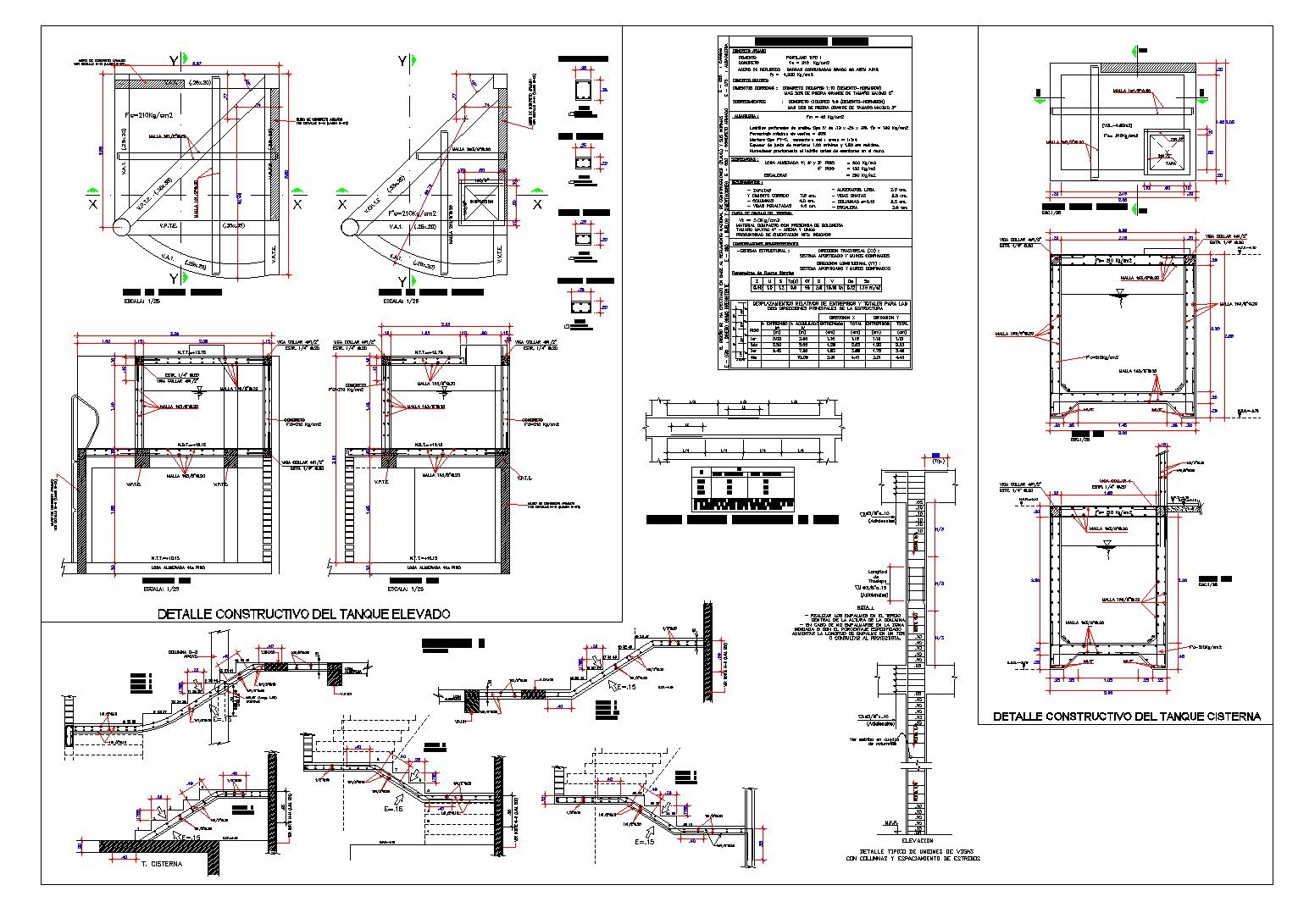
Stair and tank section autocad file
Home
Categories
Details
Construction Details
Stair and tank section autocad file
Uploaded by:
Dhara
View Profile
View Profile
Description
Stair and tank section autocad file, specification detail, table detail, reinforcements detail, bolt nut detail, beam section detail, column section detail, etc.
File Type:
DWG
File Size:
876 KB
Category::
Details
Sub Category::
Construction Details
type:
Gold
Uploaded by:
Dhara
View Profile
Download
Add to libary
find Latest
Related
Files