Section house plan layout file

Section house plan layout file
Profile

Uploaded by:

Dhara

Description
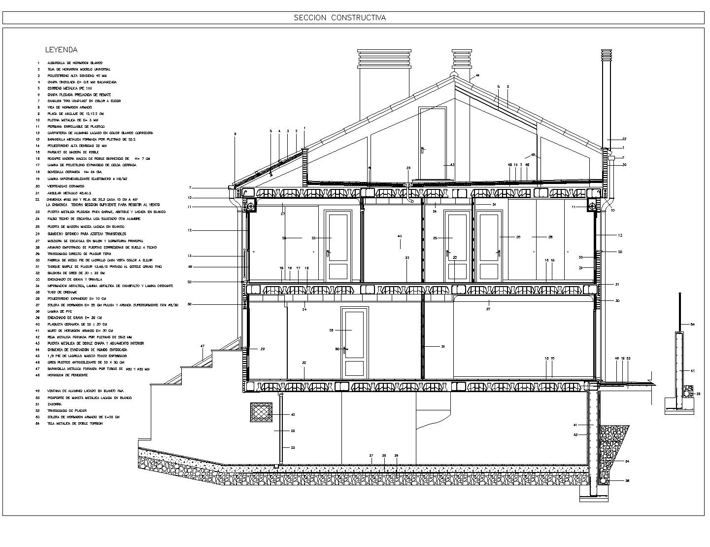
Section house plan layout file, foundation section plan detail, naming detail, numbering detail, furniture detail in door and window detail, stair detail, roof plan detail, stone detail, etc.
Profile

Uploaded by:

Dhara

find Latest

Related Files