House three plants autoacd file
Description
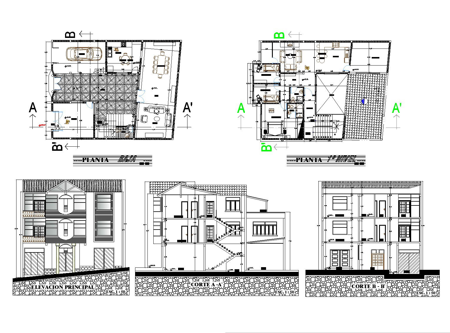
House three plants autoacd file, front elevation detail, section A-A’ detail, section B-B’ detail, dimension detail, stair cutting detail, section line detail, car parking detail, furniture detail in table, chair, door, window sofa and cub board detail, dimension detail, naming detail, etc.
Uploaded by:

