LOGIN
HOME
CATEGORIES
UPLOAD FILE
PRICING
HOUSE PLAN
ABOUT US
CONTACT US
Gang plank plan and section dwg file
Home
Categories
Architecture
House Plan
Gang plank plan and section dwg file
Uploaded by:
Dhara
View Profile
View Profile
Description
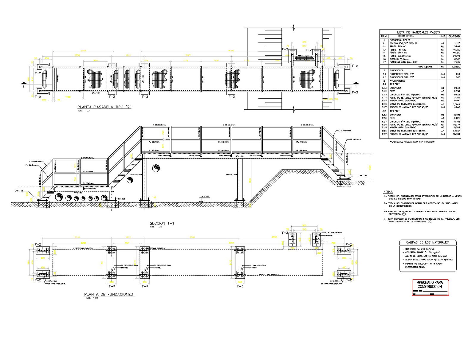
Gang plank plan and section dwg file, specification detail, table detail, dimension detail, naming detail, column section detail, hidden line detail, scale 1:50 detail, etc.
File Type:
DWG
File Size:
339 KB
Category::
Architecture
Sub Category::
House Plan
type:
Gold
Uploaded by:
Dhara
View Profile
Download
Add to libary
find Latest
Related
Files