LOGIN
HOME
CATEGORIES
UPLOAD FILE
PRICING
HOUSE PLAN
ABOUT US
CONTACT US
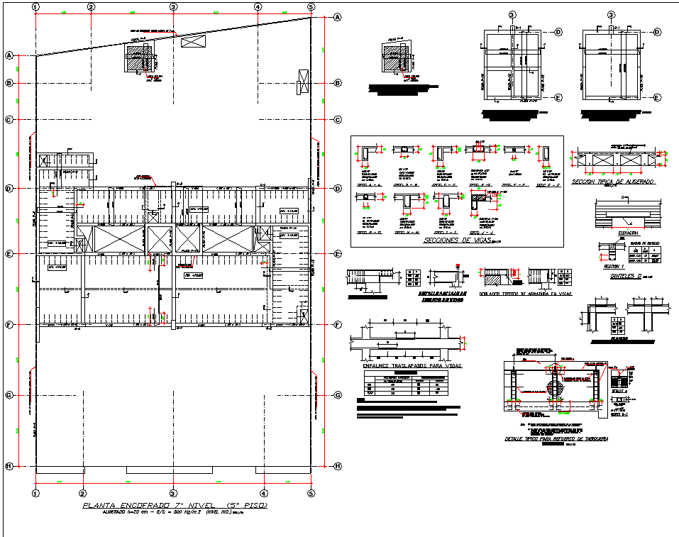
Detail of column and beam layout file
Home
Categories
Structure
Column Details Drawing
Detail of column and beam layout file
Uploaded by:
Dhara
View Profile
View Profile
Description
Detail of column and beam layout file, centre line plan detail, dimension detail, naming detail, reinforcement detail, bolt nut detail, hatching detail, cut out detail, etc.
File Type:
DWG
File Size:
1.2 MB
Category::
Structure
Sub Category::
Column Details Drawing
type:
Gold
Uploaded by:
Dhara
View Profile
Download
Add to libary
find Latest
Related
Files