Car rent office building detailed architecture project dwg file
Description
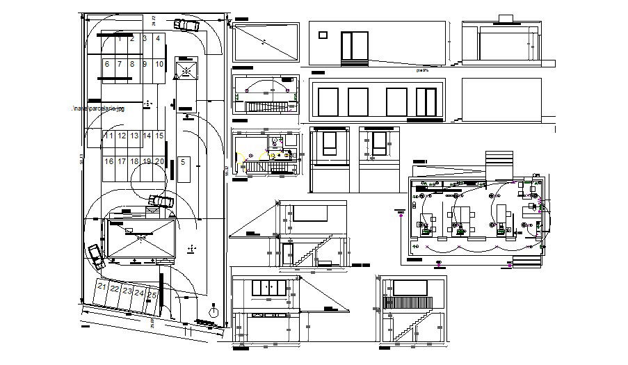
Car rent office building detailed architecture project that includes a detailed view of flooring view, doors and windows view, staircase view, balcony view, wall design, dimensions, roof or terrace view with reception area, waiting area, cabin, bottom false ceiling, computer lab, bottom of grid ceiling, counselling room and library, conference room, manager cabin and much more of office details.
Uploaded by:

