Building design department
Description
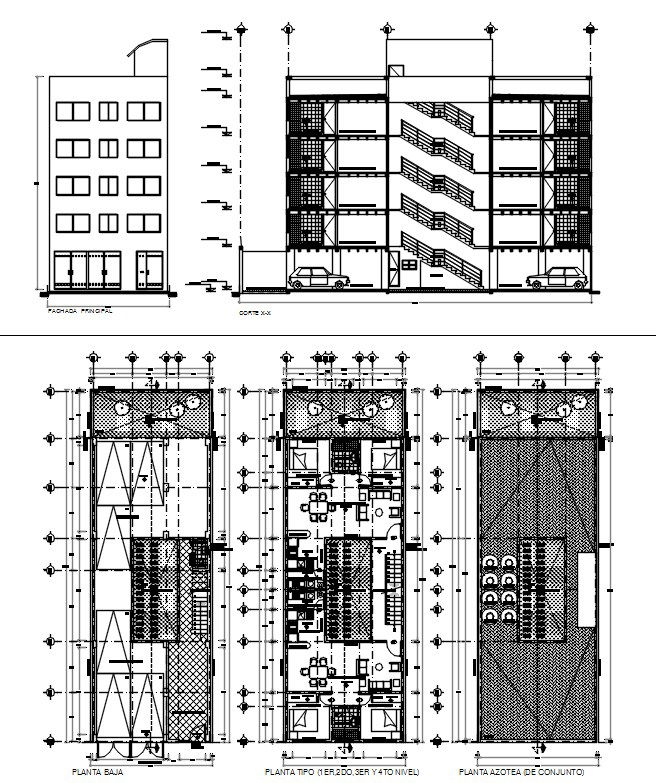
Building Design is an approach to the design of any complexity of building, from single-detached homes up to and including high-rise apartments and office buildings. Department Building Design Design File.

Uploaded by:
Liam
White

