House elevation Design
Description
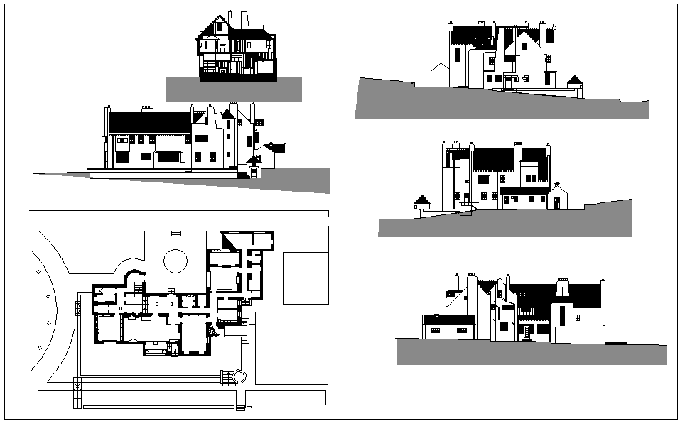
A bedroom is a room of a house or an apartment where people sleep. House elevation Design DWG file. living room, also called a lounge room or sitting room [U], is a room in a residential house or apartment for relaxing and socializing. House elevation Design Detail.

Uploaded by:
Liam
White
