Condo Style House In DWG File
Description
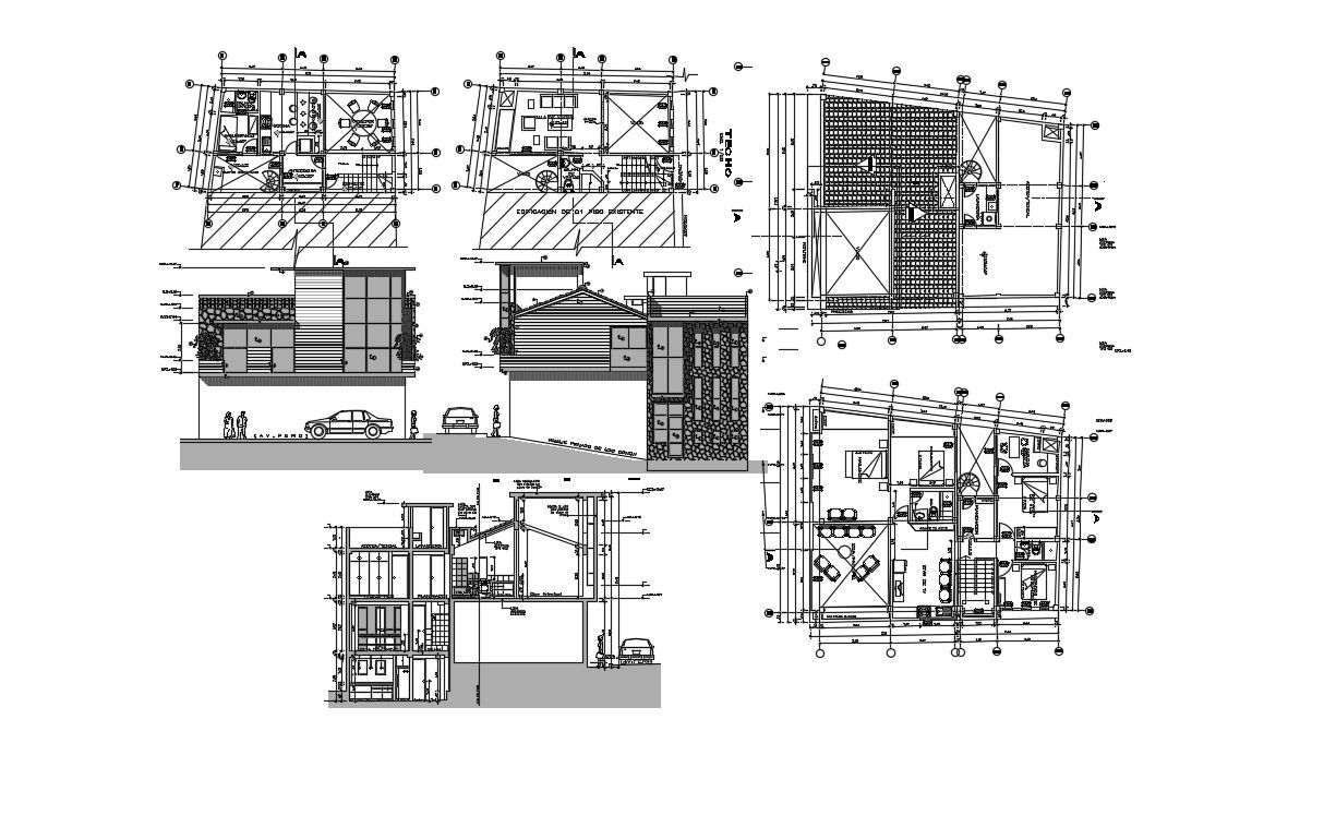
Condo Style House In DWG File which provide detail dimensions of drawing room, bedroom, kitchen, dining area, kitchen, bathroom, toilet, it also includes detail of furniture.

Uploaded by:
Eiz
Luna

Uploaded by:
Luna