LOGIN
HOME
CATEGORIES
UPLOAD FILE
PRICING
HOUSE PLAN
ABOUT US
CONTACT US
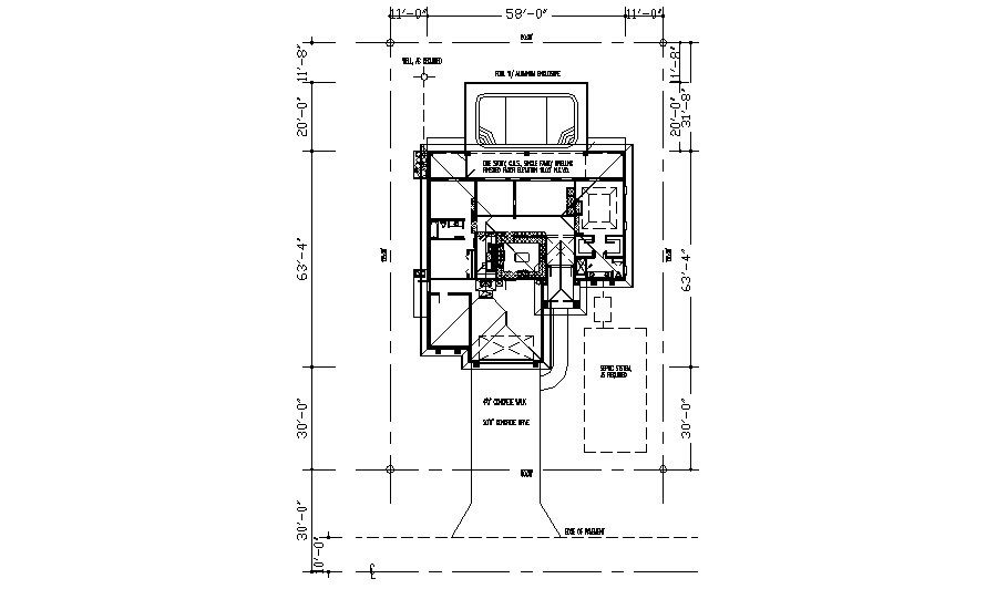
Autocad drawing of single storey residence
Home
Categories
Architecture
House Plan
Autocad drawing of single storey residence
Uploaded by:
Eiz
Luna
View Profile
View Profile
Description
Autocad drawing of single storey residence it includes detail of roof plan, drawing room, kitchen, bedroom, toilets, wash area and verandah etc
File Type:
DWG
File Size:
149 KB
Category::
Architecture
Sub Category::
House Plan
type:
Gold
Uploaded by:
Eiz
Luna
View Profile
Download
Add to libary
find Latest
Related
Files