LOGIN
HOME
CATEGORIES
UPLOAD FILE
PRICING
HOUSE PLAN
ABOUT US
CONTACT US
Hospital Extension
Home
Categories
Architecture
Hospital Projects
Hospital Extension
Uploaded by:
Vivek
Vinayak
View Profile
View Profile
Description
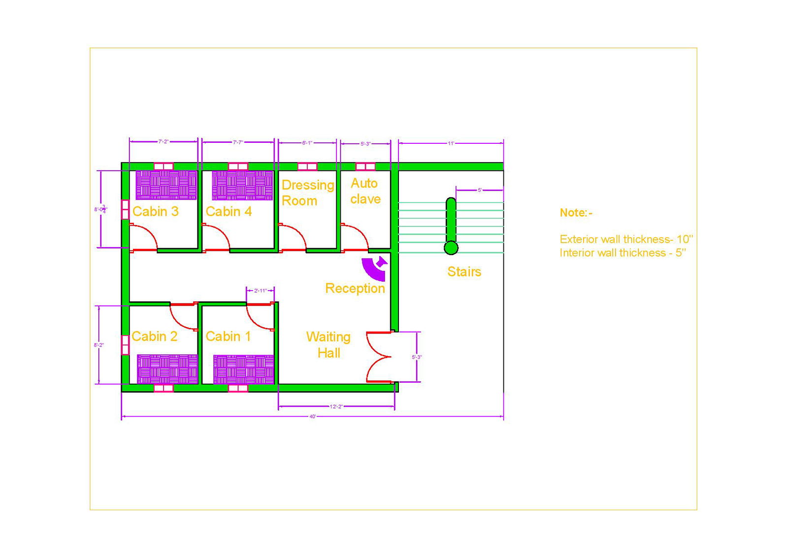
This floor plan is an extension of a hospital that has four cabins for patients, an Autoclave room, a staffroom and a waiting hall cum reception desk.
File Type:
DWG
File Size:
49 KB
Category::
Architecture
Sub Category::
Hospital Projects
type:
Gold
Uploaded by:
Vivek
Vinayak
View Profile
Download
Add to libary
find Latest
Related
Files