Plan of girls school 61.66mtr x 42.09mtr with elevation in AutoCAD
Description
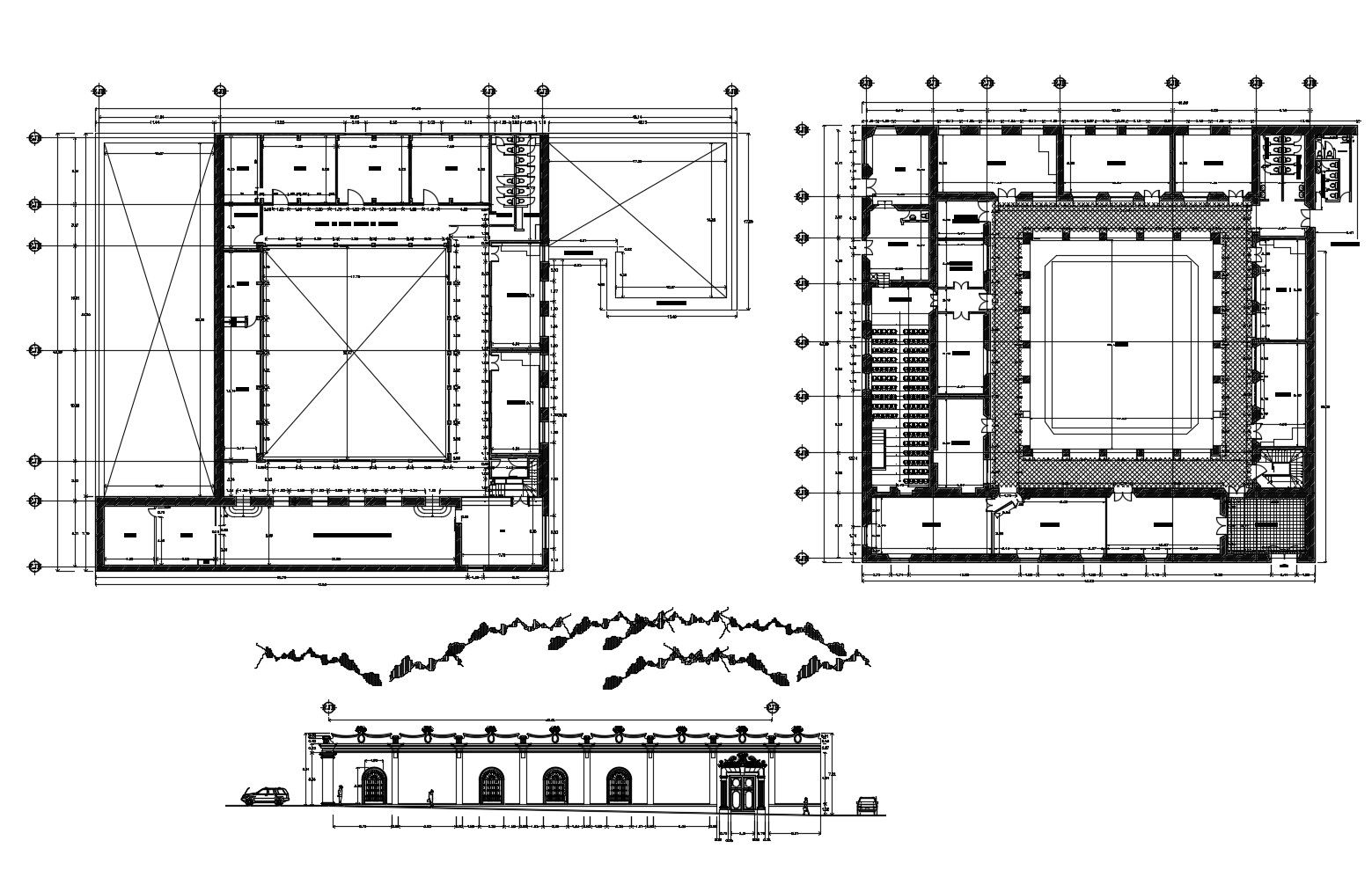
Plan of girls school 61.66mtr x 42.09mtr with elevation in AutoCAD which provide detail of front elevation, detail of hall, class, passage, etc.

Uploaded by:
Eiz
Luna

Uploaded by:
Luna