LOGIN
HOME
CATEGORIES
UPLOAD FILE
PRICING
HOUSE PLAN
ABOUT US
CONTACT US
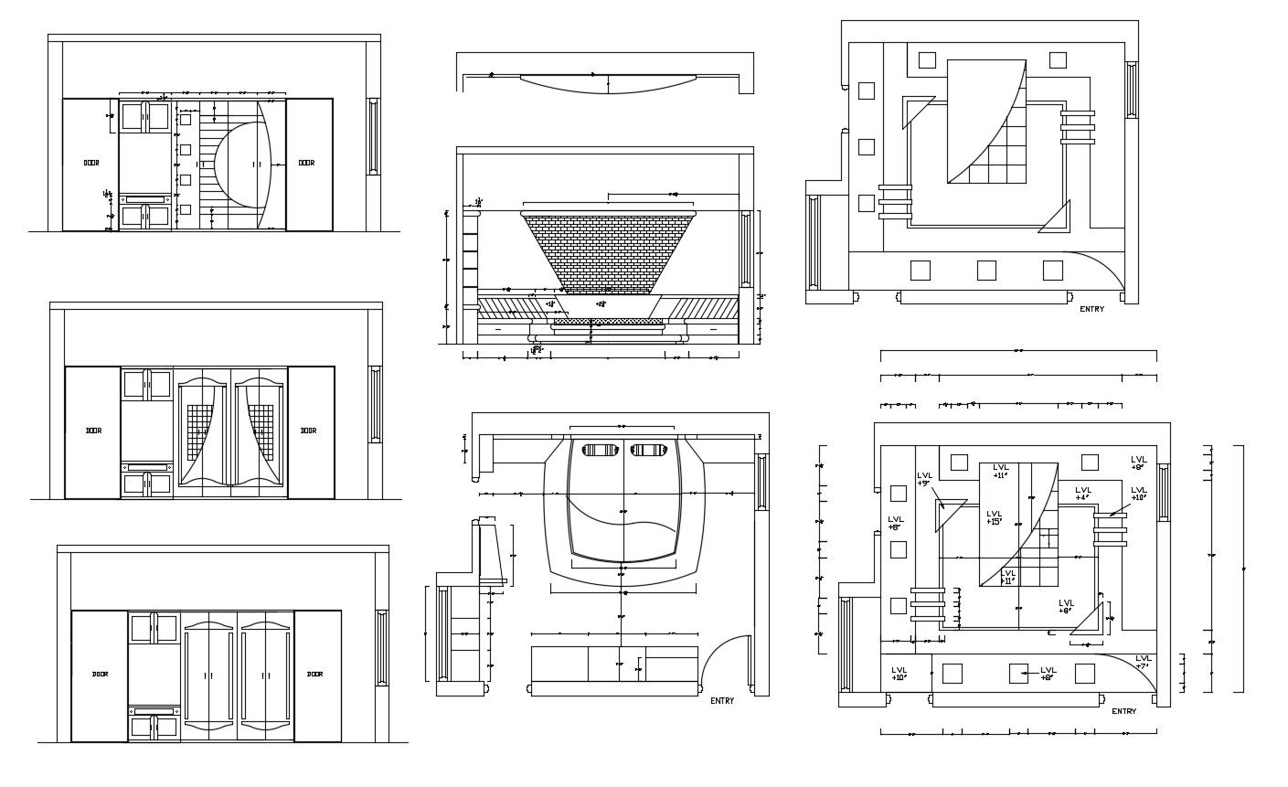
Bedroom layout with elevations in dwg file
Home
Categories
Interior Design
Bedroom Interiors
Bedroom layout with elevations in dwg file
Uploaded by:
K.H.J
Jani
View Profile
View Profile
Description
Bedroom layout with elevations in dwg file it include wardrobe designs, bed design, drawer, dressing room, ceiling layout,etc
File Type:
DWG
File Size:
1.3 MB
Category::
Interior Design
Sub Category::
Bedroom Interiors
type:
Gold
Uploaded by:
K.H.J
Jani
View Profile
Download
Add to libary
find Latest
Related
Files