LOGIN
HOME
CATEGORIES
UPLOAD FILE
PRICING
HOUSE PLAN
ABOUT US
CONTACT US
Master bedroom with elevations dwg file
Home
Categories
Interior Design
Bedroom Interiors
Master bedroom with elevations dwg file
Uploaded by:
K.H.J
Jani
View Profile
View Profile
Description
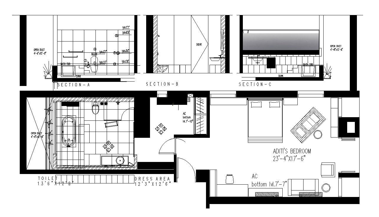
Master bedroom with elevations dwg file it include floor layout it also include bed,tv unit,wardrobe,etc
File Type:
DWG
File Size:
303 KB
Category::
Interior Design
Sub Category::
Bedroom Interiors
type:
Gold
Uploaded by:
K.H.J
Jani
View Profile
Download
Add to libary
find Latest
Related
Files