LOGIN
HOME
CATEGORIES
UPLOAD FILE
PRICING
HOUSE PLAN
ABOUT US
CONTACT US
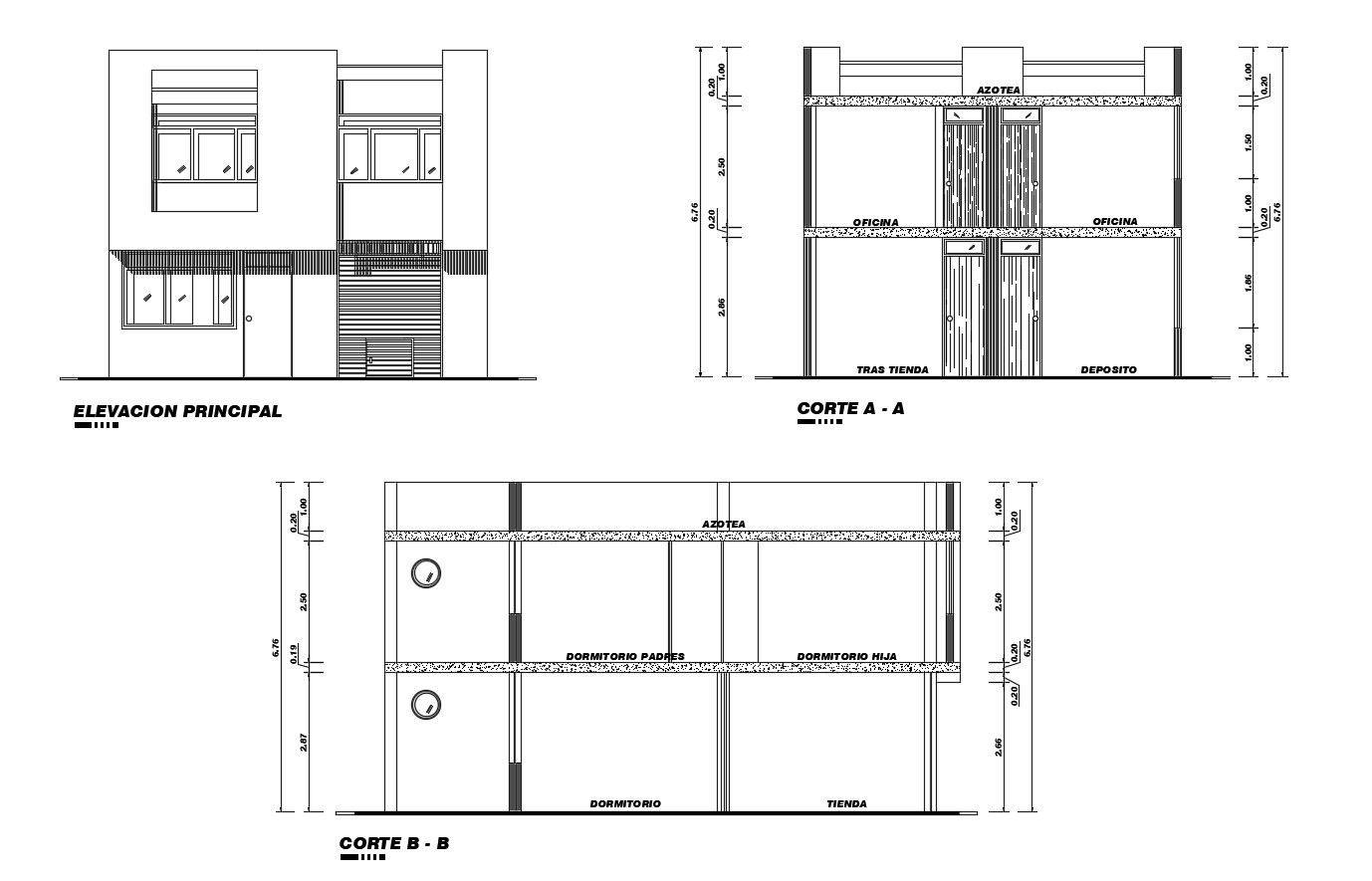
Autocad drawing of residential house elevations
Home
Categories
Architecture
House Plan
Autocad drawing of residential house elevations
Uploaded by:
K.H.J
Jani
View Profile
View Profile
Description
Autocad drawing of residential house elevations it includes front facade, section, floor level,etc
File Type:
DWG
File Size:
403 KB
Category::
Architecture
Sub Category::
House Plan
type:
Gold
Uploaded by:
K.H.J
Jani
View Profile
Download
Add to libary
find Latest
Related
Files