LOGIN
HOME
CATEGORIES
UPLOAD FILE
PRICING
HOUSE PLAN
ABOUT US
CONTACT US
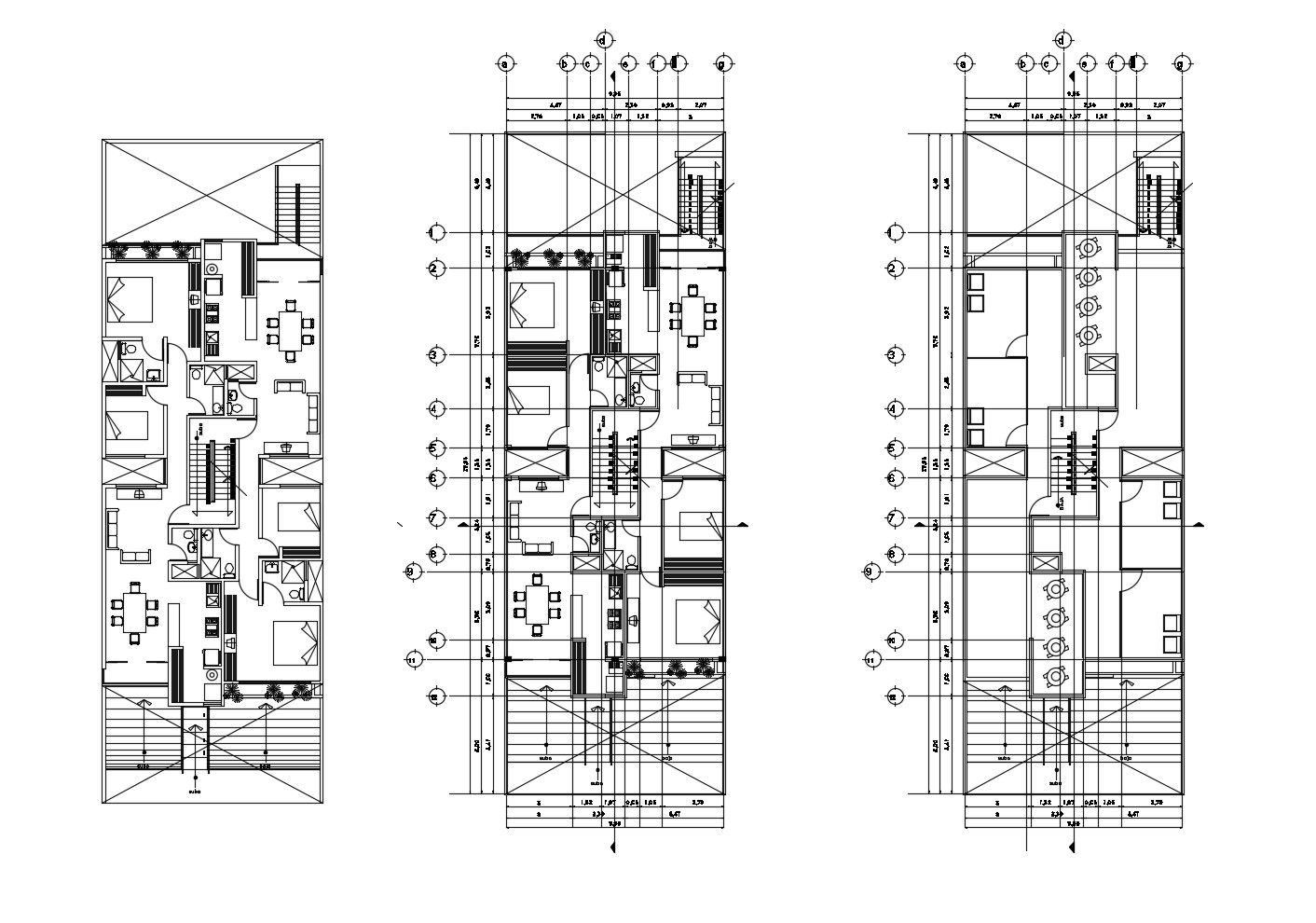
Apartment design with furniture details in dwg file
Home
Categories
Architecture
Apartment Drawing
Apartment design with furniture details in dwg file
Uploaded by:
Eiz
Luna
View Profile
View Profile
Description
Apartment design with furniture details in dwg file which provide detail of drawing room, bedroom, kitchen, dining room, bathroom, toilet, etc.
File Type:
DWG
File Size:
552 KB
Category::
Architecture
Sub Category::
Apartment Drawing
type:
Gold
Uploaded by:
Eiz
Luna
View Profile
Download
Add to libary
find Latest
Related
Files