LOGIN
HOME
CATEGORIES
UPLOAD FILE
PRICING
HOUSE PLAN
ABOUT US
CONTACT US
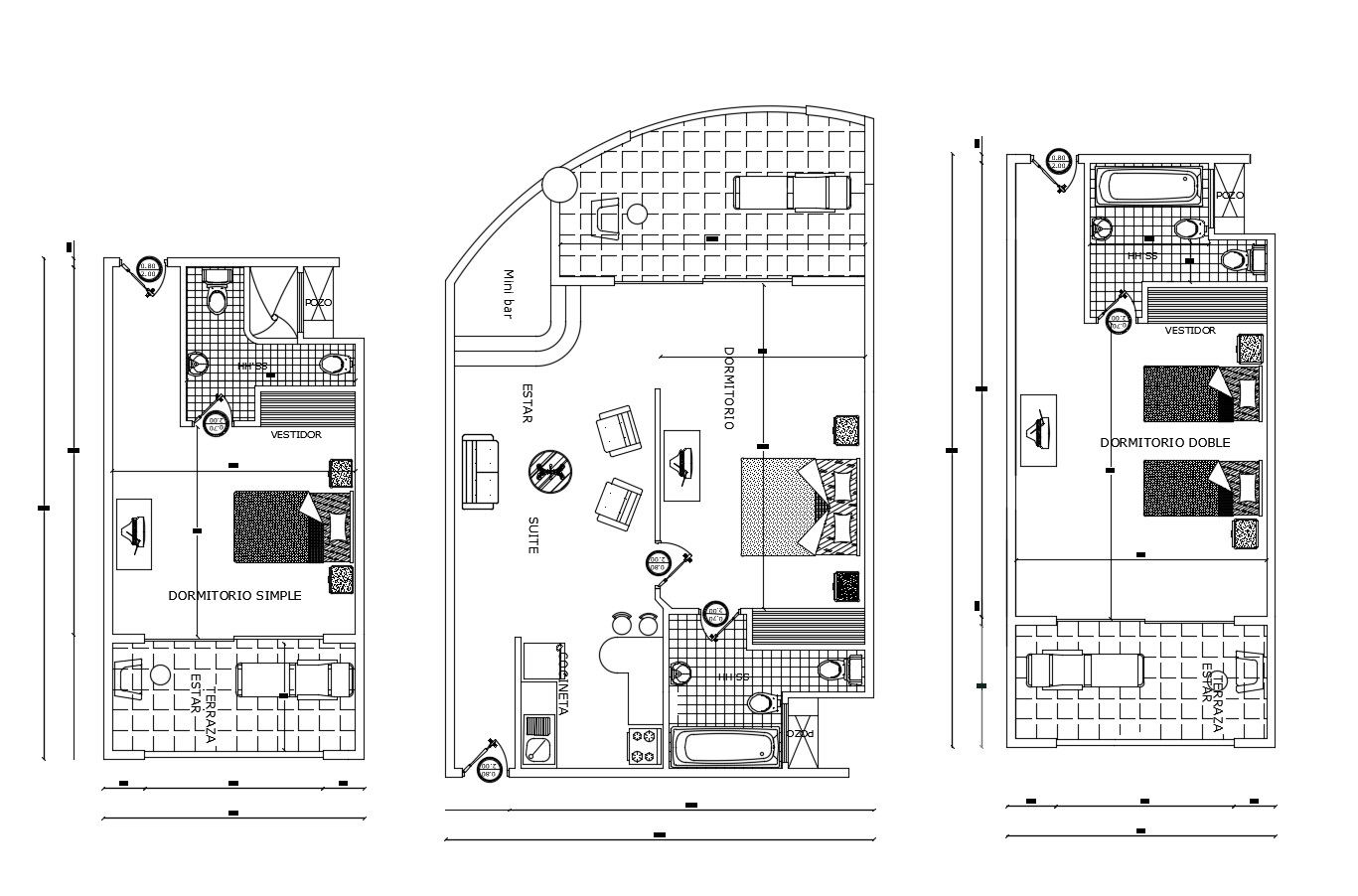
Enlarge detail of bedroom in autocad
Home
Categories
Architecture
Hotels and Restaurants
Enlarge detail of bedroom in autocad
Uploaded by:
K.H.J
Jani
View Profile
View Profile
Description
Enlarge detail of bedroom in autocad it includes floor layout suite,bedroom,bathroom,seating area,etc
File Type:
DWG
File Size:
7.3 MB
Category::
Architecture
Sub Category::
Hotels and Restaurants
type:
Gold
Uploaded by:
K.H.J
Jani
View Profile
Download
Add to libary
find Latest
Related
Files