House plan with furniture details in AutoCAD
Description
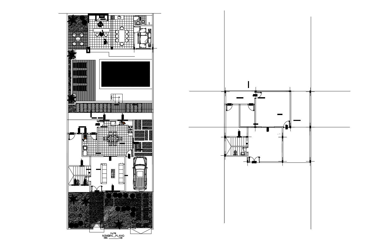
House plan with furniture details in AutoCAD which includes detail of garden area, car parking, hall, bedroom, kitchen with dining area, bathroom and toilet, etc.

Uploaded by:
Eiz
Luna

Uploaded by:
Luna