LOGIN
HOME
CATEGORIES
UPLOAD FILE
PRICING
HOUSE PLAN
ABOUT US
CONTACT US
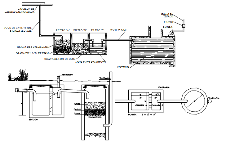
Septic tank detail in autocad
Home
Categories
Details
Interior Details
Septic tank detail in autocad
Uploaded by:
K.H.J
Jani
View Profile
View Profile
Description
Septic tank detail in autocad it includes septic tank detail,rainwater tank,etc
File Type:
DWG
File Size:
1.2 MB
Category::
Details
Sub Category::
Interior Details
type:
Gold
Uploaded by:
K.H.J
Jani
View Profile
Download
Add to libary
find Latest
Related
Files