Autocad drawing of school layout

Autocad drawing of school layout
Profile

Uploaded by:

K.H.J

Jani

Description
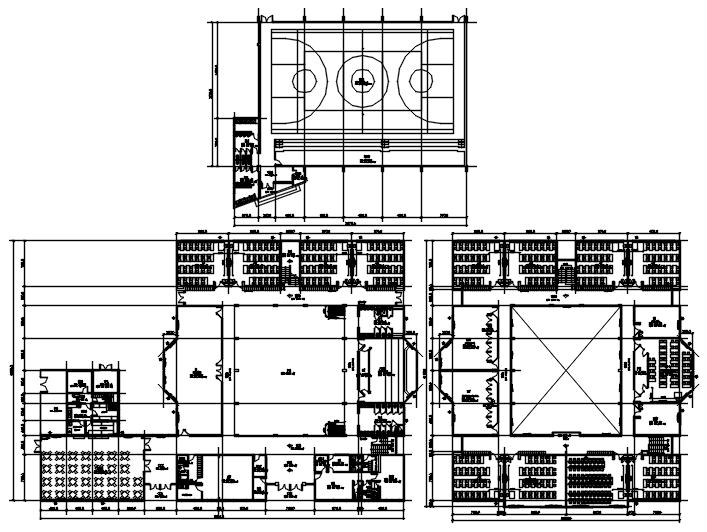
Autocad drawing of school layout it include ground floor layout, first-floor layout,basketball ground it also includes staff room,canteen,pantry,classroom,auditorium,etc
Profile

Uploaded by:

K.H.J

Jani

find Latest

Related Files

WhatsApp Chat