LOGIN
HOME
CATEGORIES
UPLOAD FILE
PRICING
HOUSE PLAN
ABOUT US
CONTACT US
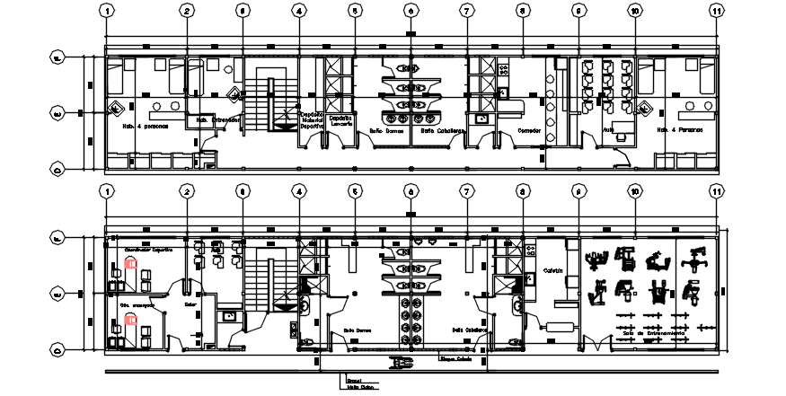
Dwg file of sports center
Home
Categories
Architecture
Sports Center
Dwg file of sports center
Uploaded by:
K.H.J
Jani
View Profile
View Profile
Description
Dwg file of sports center it includes ground floor layout, first-floor layout it also includes the reception area,waiting area,gym area,admin area,rest room,etc
File Type:
DWG
File Size:
8.8 MB
Category::
Architecture
Sub Category::
Sports Center
type:
Gold
Uploaded by:
K.H.J
Jani
View Profile
Download
Add to libary
find Latest
Related
Files