LOGIN
HOME
CATEGORIES
UPLOAD FILE
PRICING
HOUSE PLAN
ABOUT US
CONTACT US
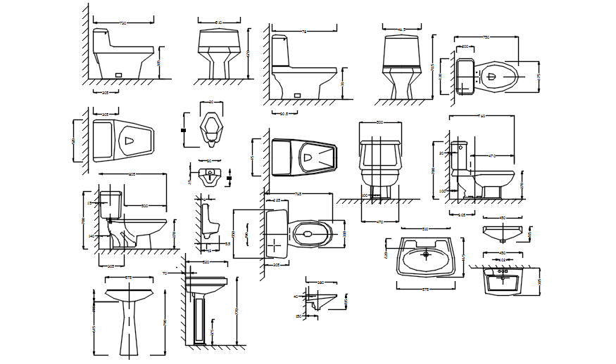
Dwg file of Sanitary detail
Home
Categories
Interior Design
Bathroom Interior
Dwg file of Sanitary detail
Uploaded by:
K.H.J
Jani
View Profile
View Profile
Description
Dwg file of Sanitary detail it include plan of w.c,section,elevation,top view,w.c details,etc
File Type:
DWG
File Size:
12.4 MB
Category::
Interior Design
Sub Category::
Bathroom Interior
type:
Gold
Uploaded by:
K.H.J
Jani
View Profile
Download
Add to libary
find Latest
Related
Files