Multiplex theatre layout in dwg file

Multiplex theatre layout in dwg file
Profile

Uploaded by:

K.H.J

Jani

Description
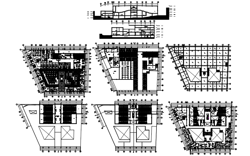
Multiplex theatre layout in dwg file it includes basement plan, ground floor layout, first-floor layout, elevations it also includes seating,cafe,waiting area,food court,etc
Profile

Uploaded by:

K.H.J

Jani

find Latest

Related Files

WhatsApp Chat