Drawing of the duplex house with detail dimension in autocad
Description
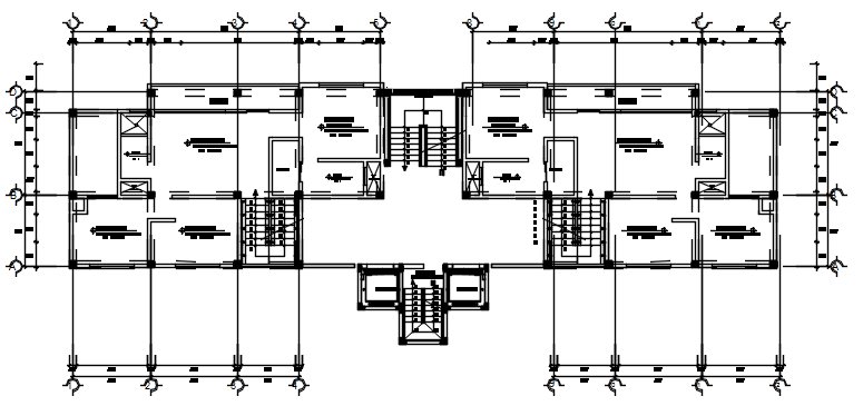
Drawing of the duplex house with detail dimension in autocad which provide detail of drawing room, bedroom, kitchen, dining room, bathroom, toilet, etc.

Uploaded by:
Eiz
Luna

Uploaded by:
Luna