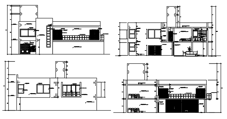
Elevation Drawing of house design in autocad
Description
Elevation Drawing of house design in autocad which provides detail of front elevation, back elevation, detail of the section, detail of floor level, etc.

Uploaded by:
Eiz
Luna

Uploaded by:
Luna