Autocad drawing of the institute

Autocad drawing of the institute
Profile

Uploaded by:

K.H.J

Jani

Description
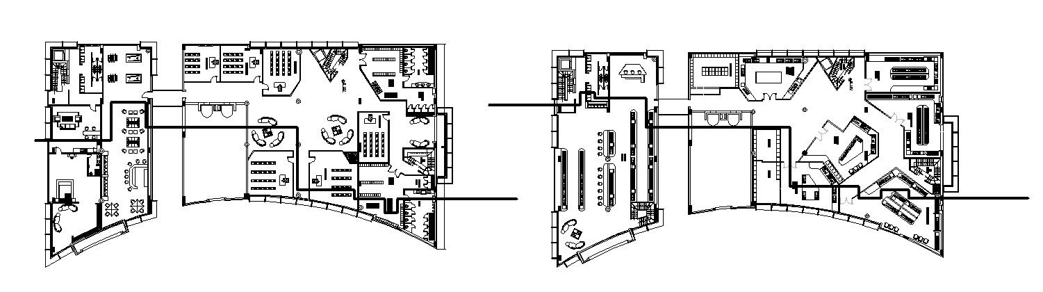
Autocad drawing of the institute it include ground floor layout, first-floor layout it also includes classroom, student's lockers, kitchen, canteen, admin area, toilets,etc
Profile

Uploaded by:

K.H.J

Jani

find Latest

Related Files

WhatsApp Chat