LOGIN
HOME
CATEGORIES
UPLOAD FILE
PRICING
HOUSE PLAN
ABOUT US
CONTACT US
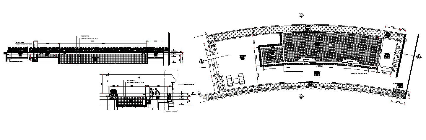
Swimming Pool Detail In DWG File
Home
Categories
Details
Interior Details
Swimming Pool Detail In DWG File
Uploaded by:
K.H.J
Jani
View Profile
View Profile
Description
Swimming Pool Detail In DWG File it includes rooftop, a section of the pool it also includes pool level, roof level.
File Type:
DWG
File Size:
1.3 MB
Category::
Details
Sub Category::
Interior Details
type:
Gold
Uploaded by:
K.H.J
Jani
View Profile
Download
Add to libary
find Latest
Related
Files