Autocad drawing of sectional elevation of bungalow
Description
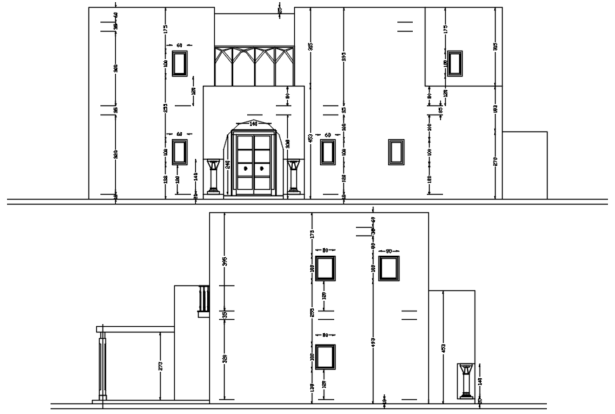
Autocad drawing of sectional elevation of bungalow it includes front facade,rear elevation it also includes floor level,rooms,doors,windows,roof construction detail,etc
Uploaded by:
K.H.J
Jani

