LOGIN
HOME
CATEGORIES
UPLOAD FILE
PRICING
HOUSE PLAN
ABOUT US
CONTACT US
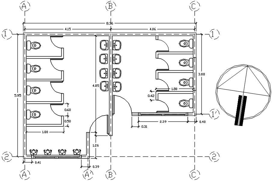
Commercial toilet layout in Autocad
Home
Categories
Interior Design
Bathroom Interior
Commercial toilet layout in Autocad
Uploaded by:
K.H.J
Jani
View Profile
View Profile
Description
Commercial toilet layout in Autocad it include floor layout it also includes toilets,w,c, basin area, urinals,etc
File Type:
DWG
File Size:
181 KB
Category::
Interior Design
Sub Category::
Bathroom Interior
type:
Gold
Uploaded by:
K.H.J
Jani
View Profile
Download
Add to libary
find Latest
Related
Files