Design of Residential house with foundation plan in dwg file
Description
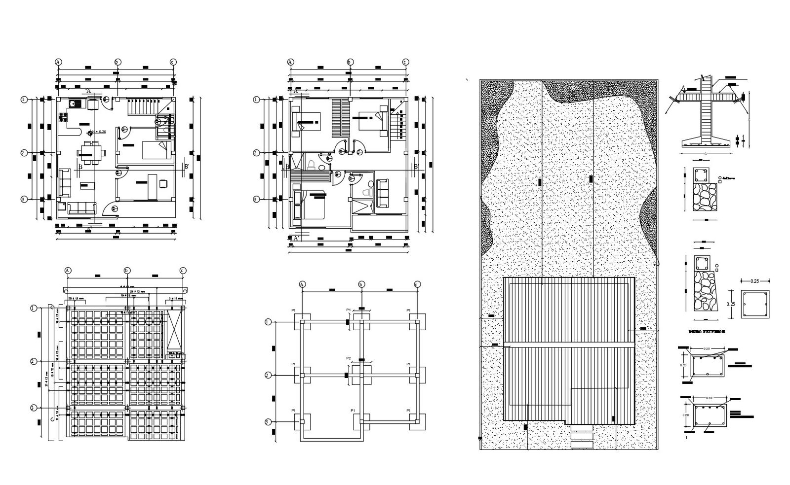
Design of Residential house with foundation plan in dwg file which provides detail of drawing room, bedroom, kitchen, dining room, bathroom, toilet, etc.

Uploaded by:
Eiz
Luna

Uploaded by:
Luna