LOGIN
HOME
CATEGORIES
UPLOAD FILE
PRICING
HOUSE PLAN
ABOUT US
CONTACT US
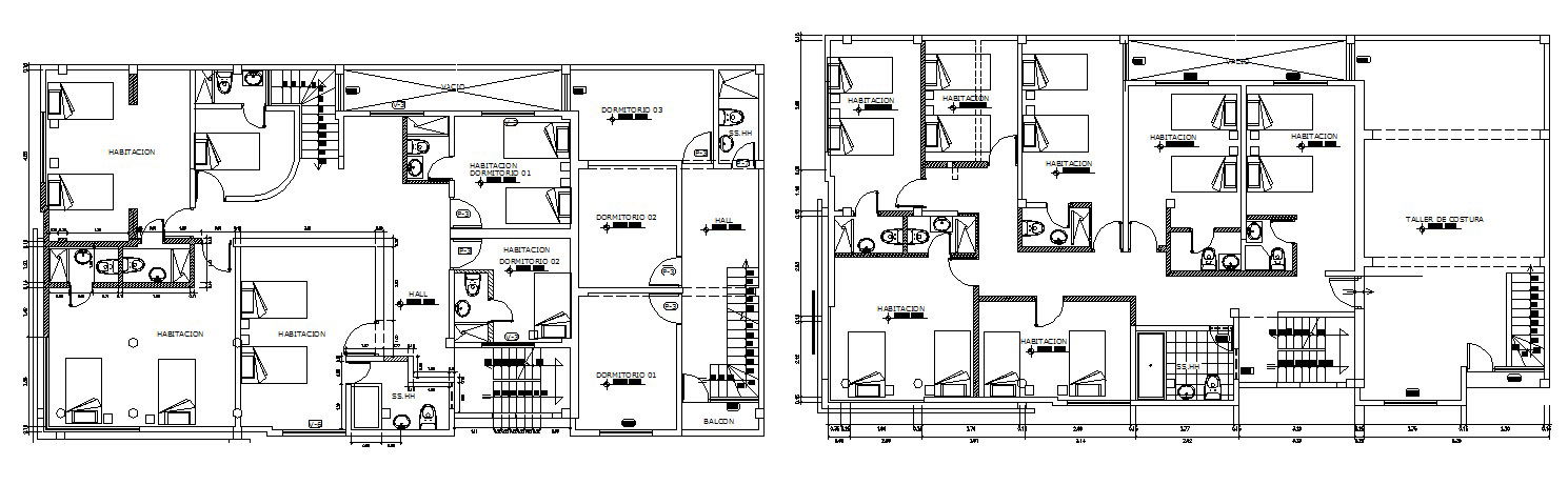
Dwg file of hospital layout
Home
Categories
Architecture
House Plan
Dwg file of hospital layout
Uploaded by:
K.H.J
Jani
View Profile
View Profile
Description
Dwg file of hospital layout it includes ground floor layout, first-floor layout it also includes reception area, waiting area, bedrooms, emergency area, toilets,etc
File Type:
DWG
File Size:
523 KB
Category::
Architecture
Sub Category::
House Plan
type:
Gold
Uploaded by:
K.H.J
Jani
View Profile
Download
Add to libary
find Latest
Related
Files