Multi Family House
Description
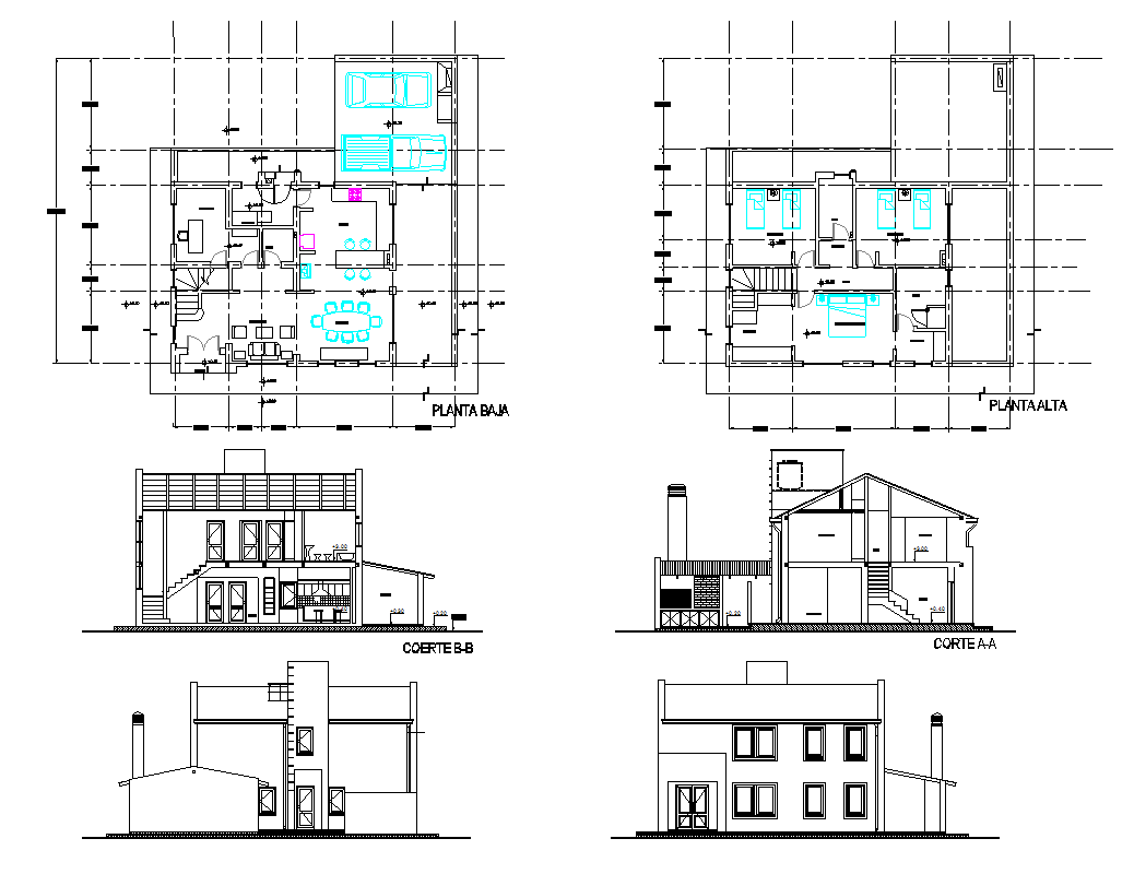
The architecture layout plan of all floor with all dimension, section plan and elevation design of house. Multi Family House design DWG file, Multi Family House Design.

Uploaded by:
Harriet
Burrows

Uploaded by:
Burrows