Residential apartment in dwg file

Residential apartment in dwg file
Profile

Uploaded by:

K.H.J

Jani

Description
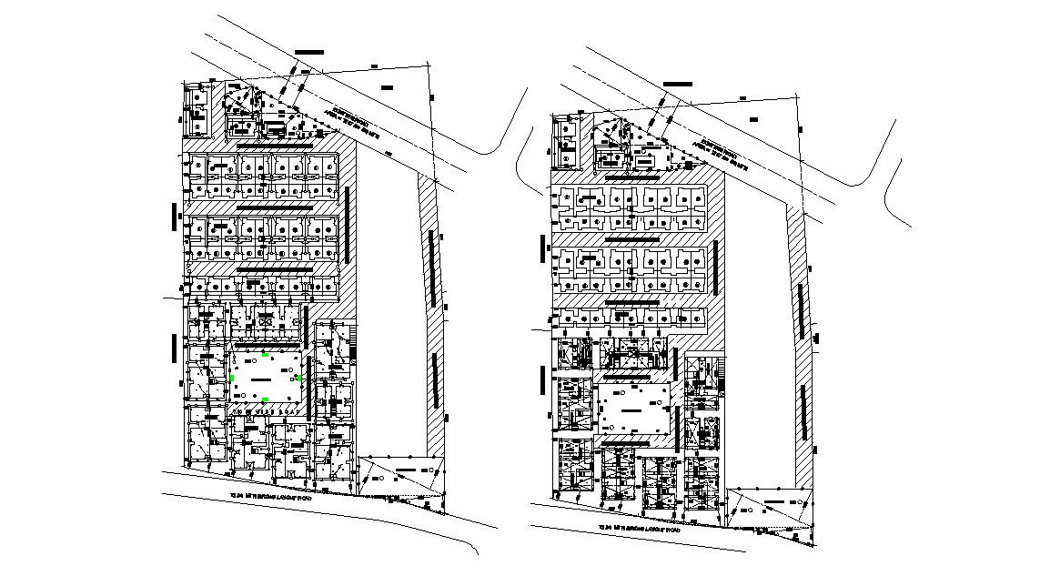
Residential apartment in dwg file it includes site plan, ground floor layout it also includes kitchen, drawing room, dining room, bedrooms, toilets, bathroom, parking area,etc
Profile

Uploaded by:

K.H.J

Jani

find Latest

Related Files