LOGIN
HOME
CATEGORIES
UPLOAD FILE
PRICING
HOUSE PLAN
ABOUT US
CONTACT US
House Plan In DWG File
Home
Categories
Architecture
House Plan
House Plan In DWG File
Uploaded by:
Eiz
Luna
View Profile
View Profile
Description
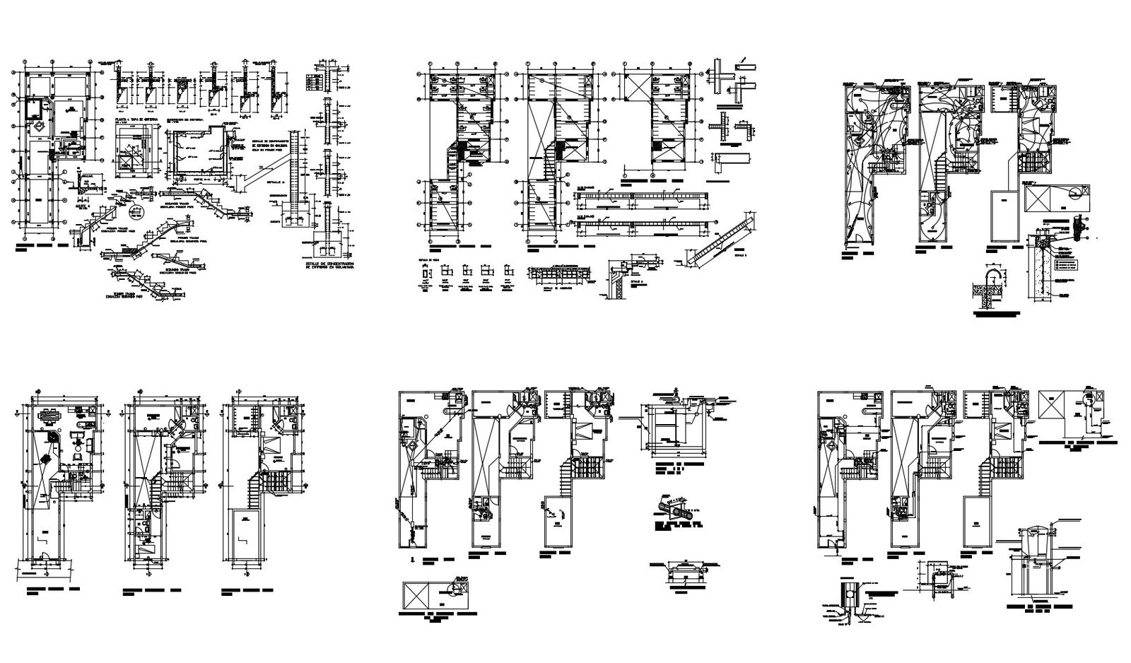
House Plan In DWG File which provides detail of hall, bedroom, kitchen with dining area, bathroom, toilet, etc it also gives detail of furniture.
File Type:
DWG
File Size:
2 MB
Category::
Architecture
Sub Category::
House Plan
type:
Gold
Uploaded by:
Eiz
Luna
View Profile
Download
Add to libary
find Latest
Related
Files