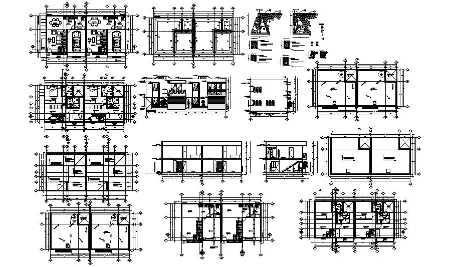
Condo Plans In AutoCAD File
Description
Condo Plans In AutoCAD File which includes detail of foundation, detail dimension of the hall, kitchen with dining area, bedroom, bathroom toilet, etc it also gives detail of car parking.

Uploaded by:
Eiz
Luna

Uploaded by:
Luna