LOGIN
HOME
CATEGORIES
UPLOAD FILE
PRICING
HOUSE PLAN
ABOUT US
CONTACT US
Building Design Plan In AutoCAD File
Home
Categories
Architecture
Corporate Building
Building Design Plan In AutoCAD File
Uploaded by:
Eiz
Luna
View Profile
View Profile
Description
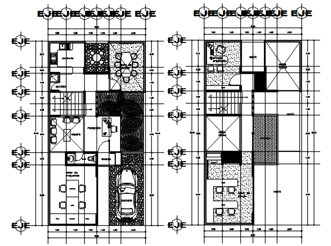
Building Design Plan In AutoCAD File which provides detail of the hall, waiting room, class, washroom, toilet, car parking.
File Type:
DWG
File Size:
837 KB
Category::
Architecture
Sub Category::
Corporate Building
type:
Gold
Uploaded by:
Eiz
Luna
View Profile
Download
Add to libary
find Latest
Related
Files