LOGIN
HOME
CATEGORIES
UPLOAD FILE
PRICING
HOUSE PLAN
ABOUT US
CONTACT US
Apartment Floor Plan In DWG File
Home
Categories
Architecture
Apartment Drawing
Apartment Floor Plan In DWG File
Uploaded by:
Eiz
Luna
View Profile
View Profile
Description
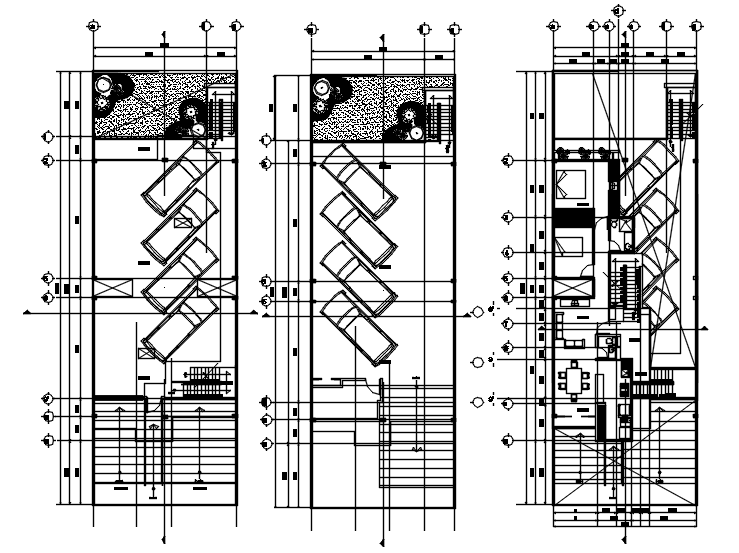
Apartment Floor Plan In DWG File which provides detail of drawing room, bedroom, kitchen, dining room, bathroom. It includes detail of the parking plan.
File Type:
DWG
File Size:
808 KB
Category::
Architecture
Sub Category::
Apartment Drawing
type:
Gold
Uploaded by:
Eiz
Luna
View Profile
Download
Add to libary
find Latest
Related
Files