Restaurant Floor Plan In DWG File
Description
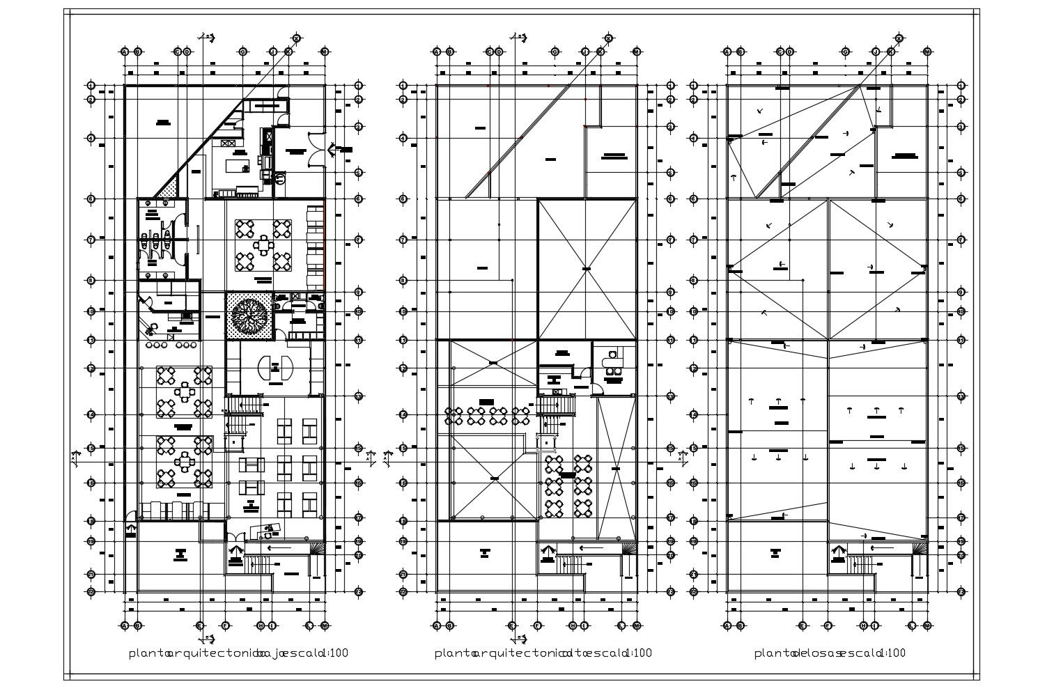
Restaurant Floor Plan In DWG File which includes detail of waiting hall, passage, dining area, bar area, washroom, toilet, garden area, etc it also gives detail of furniture.

Uploaded by:
Eiz
Luna

Uploaded by:
Luna