Hotel design plan in AutoCAD file
Description
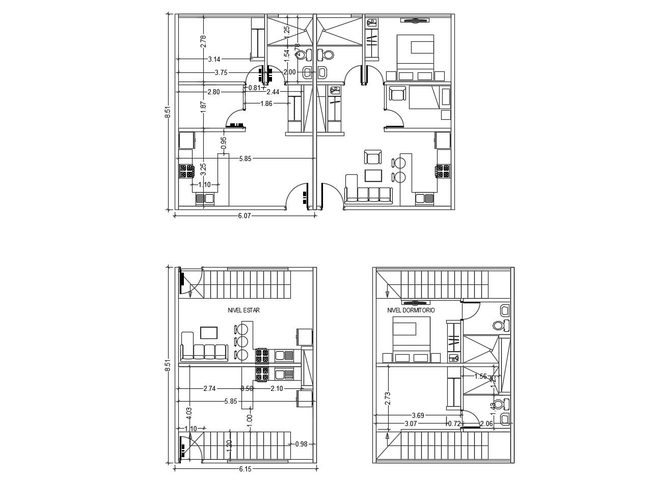
Hotel design plan in AutoCAD file which provide details of the hall, waiting area, rooms, kitchen area, washroom and toilet, staircase area, etc it also gives details of furniture.

Uploaded by:
Eiz
Luna

Uploaded by:
Luna