LOGIN
HOME
CATEGORIES
UPLOAD FILE
PRICING
HOUSE PLAN
ABOUT US
CONTACT US
Residential House Design In AutoCAD File
Home
Categories
Architecture
House Plan
Residential House Design In AutoCAD File
Uploaded by:
Eiz
Luna
View Profile
View Profile
Description
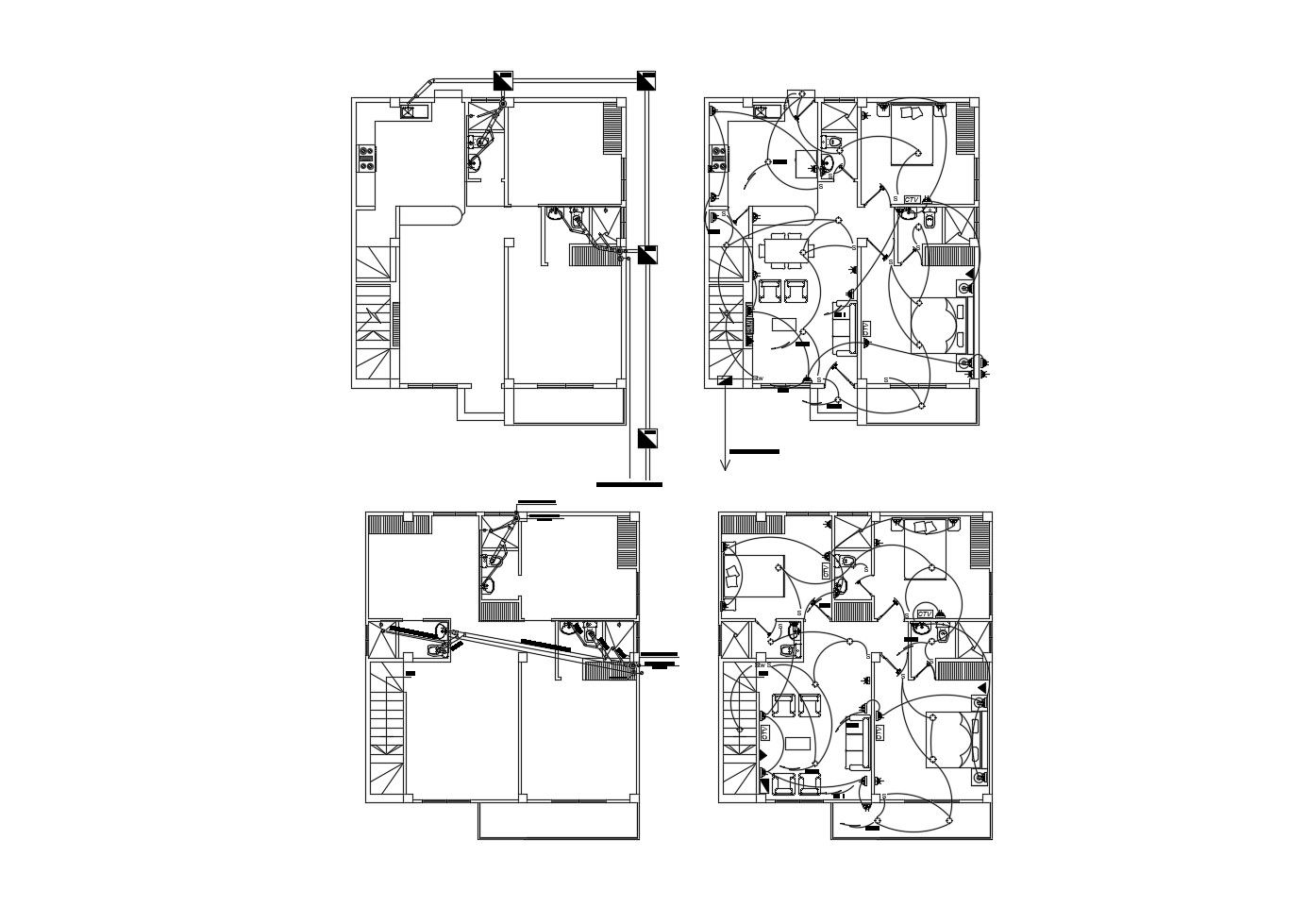
Residential House Design In AutoCAD File which provides detail of electric layout plan, sanitary layout plan, etc it also gives detail of PVC pipeline.
File Type:
DWG
File Size:
864 KB
Category::
Architecture
Sub Category::
House Plan
type:
Gold
Uploaded by:
Eiz
Luna
View Profile
Download
Add to libary
find Latest
Related
Files