LOGIN
HOME
CATEGORIES
UPLOAD FILE
PRICING
HOUSE PLAN
ABOUT US
CONTACT US
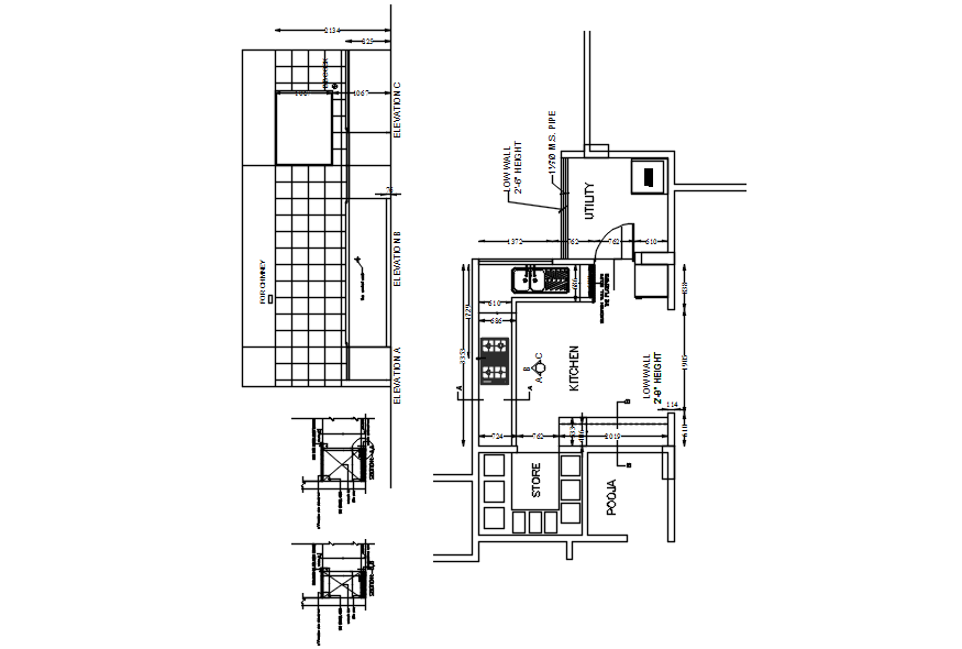
Kitchen Platform Design In AutoCAD File
Home
Categories
Architecture
House Plan
Kitchen Platform Design In AutoCAD File
Uploaded by:
Eiz
Luna
View Profile
View Profile
Description
Kitchen Platform Design In AutoCAD File which includes detail of kitchen, pooja room, storeroom, utility.
File Type:
DWG
File Size:
402 KB
Category::
Architecture
Sub Category::
House Plan
type:
Gold
Uploaded by:
Eiz
Luna
View Profile
Download
Add to libary
find Latest
Related
Files