LOGIN
HOME
CATEGORIES
UPLOAD FILE
PRICING
HOUSE PLAN
ABOUT US
CONTACT US
Download Washbasin Drawing Cad File
Home
Categories
Architecture
House Plan
Download Washbasin Drawing Cad File
Uploaded by:
Eiz
Luna
View Profile
View Profile
Description
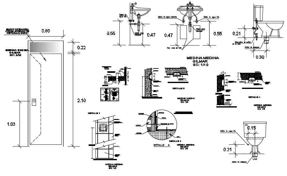
Download Washbasin drawing dwg file; includes installation details with sectional view and elevation view in AutoCAD file.
File Type:
DWG
File Size:
1.7 MB
Category::
Architecture
Sub Category::
House Plan
type:
Gold
Uploaded by:
Eiz
Luna
View Profile
Download
Add to libary
find Latest
Related
Files