LOGIN
HOME
CATEGORIES
UPLOAD FILE
PRICING
HOUSE PLAN
ABOUT US
CONTACT US
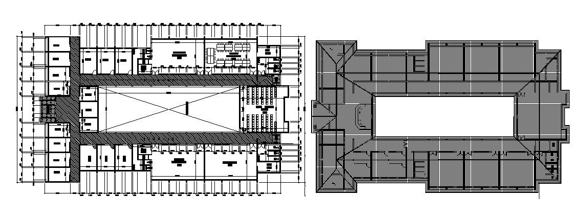
Plan of the laboratory with detail dimension in dwg file
Home
Categories
Architecture
Hospital Projects
Plan of the laboratory with detail dimension in dwg file
Uploaded by:
Eiz
Luna
View Profile
View Profile
Description
Plan of the laboratory with detail dimension in dwg file which includes detail of different department, detail of roof plan, etc.
File Type:
DWG
File Size:
710 KB
Category::
Architecture
Sub Category::
Hospital Projects
type:
Gold
Uploaded by:
Eiz
Luna
View Profile
Download
Add to libary
find Latest
Related
Files